常州市百得干燥工程有限公司
—— Changzhou Baide Drying Engineering Co., Ltd ——
- 聯系電話
- 0519-8918 6676

所屬分類:真空干燥機
產品概述:耙式真空干燥機是一種以熱傳導間接加熱為主、臥式攪拌型干燥機。主要用于易爆、易氧化、膏糊狀物料的干燥。在高真空下操作,溶劑沸點降低,同時隔絕了空氣,避免了物料干燥過程中氧化及過熱變質。
耙式真空干燥機裝置用蒸汽夾套間接加熱物料,并在高真空下排氣,因此特別適應不耐高溫、在高溫下易于氧化的物料或干燥時容易產生粉末的物料(如各種燃料),以及干燥過程中排除的蒸汽或溶劑必須回收的物料干燥作業。真空耙式干燥機中被干燥物料含水量或溶劑量^高達到90%,而^低的只有15%。被干燥物料有漿狀、膏狀的、粒狀的、粉狀的,也可以是纖維狀的。
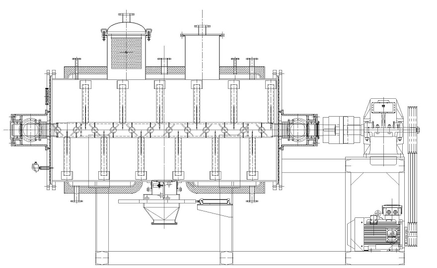
耙式真空干燥機 設備結構圖
耙式真空干燥機 四種類型耙桿的結構圖
真空耙式干燥機 技術參數表
7月28日,常州百得干燥承制四川客戶的三期多臺草銨膦專用過濾洗滌二合一、單錐真空干燥機及時交付。感謝老客…
雙錐干燥機的用戶企業在生產過程中,需將原料投入干燥機內,這過程中很容易摻進其它異物進入原料中,同時因為…
現有聚乙醇酸PGA單體乙交酯干燥設備在運行過程中存在產品含濕量不均勻等問題,常州百得研制成功了新型重載式…
常州百得研制的大型重載式真空單錐干燥機通過在下錐體內設置了雙內加熱螺帶攪拌器,尤其是設置了變螺距螺帶,…
常州百得研制的大型重載式真空單錐干燥機通過在下錐體內設置了雙內加熱螺帶攪拌器,尤其是設置了變螺距螺帶,…
四川農藥行業客戶與百得干燥就“年產2000噸新型除草劑——草銨膦專用單錐真空干燥機項目”正式達成合作協議,…